Page 91 - CITS - Fitter Trade Pactical - Volume - 2
P. 91
FITTER - CITS
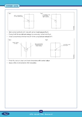
Fig 1 Fig 2
• Mark correct centre for drill hole with vernier height gauge (Fig 3)
• Finally, fix Ø 16 mm drill and enlarge the previously drilled hole Fig 4.
• Check concentricity of drilled hole Ø 16 mm using dial test indicator DTI.
Fig 3 Fig 4
• Finish file, de-burr, clean and check dimensions with vernier caliper
• Apply a little oil and preserve it for evaluation.
76
CITS : CG & M - Fitter - Exercise 27

