Page 156 - CITS - Fitter Trade Practical - Volume -2
P. 156
FITTER - CITS
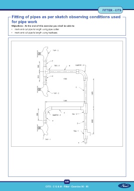
Fitting of pipes as per sketch observing conditions used
for pipe work
Objectives : At the end of this exercise you shall be able to
• mark and cut pipe to length using pipe cutter
• mark and cut pipe to length using hacksaw.
141
CITS : C G & M - Fitter - Exercise 86 - 88 CITS : C G & M - Fitter - Exercise 86 - 88

