Page 27 - CITS - Fitter Trade Practical - Volume -2
P. 27

FITTER - CITS





             Fig 3























             Fig 4
























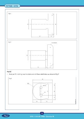
           Part B

           •   Hold part B in drilling machine table and drill 8mm relief holes as shown in Fig 5.


              Fig 5




























                                                           12

                                            CITS : C G & M - Fitter - Exercise 59
   22   23   24   25   26   27   28   29   30   31   32