Page 105 - CITS - Fitter - TP (Volume 2) - Hindi
P. 105
िफटर - CITS
Fig 1
Fig 2
Fig 3
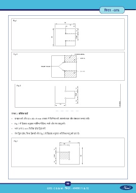
टा 2: फीमेल पाट
• फ़ाइल कर और 50 x 48 x 9 mm आकार म िफ़िनश कर , समानांतरता और लंबवतता बनाए रख ।
• Fig 1 म िदखाए अनुसार मािक ग मीिडया, माक और पंच लागू कर ।
• भाग B पर 3 mm रलीफ़ होल िड ल कर
• चेन िड ल होल, िच हैकसॉ और Fig 2 म िदखाए अनुसार अित र धातु को हटा द ।
Fig 1
93
CITS : C G & M - िफटर - अ ास 71 & 72

