Page 148 - CITS - Welder - Trade Theory
P. 148

WELDER - CITS



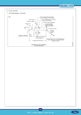
           6   Finish symbols
           7   Tail (Specification, process)


              Fig 1


















































































                                                           135

 CITS : C G & M - Welder - Lesson 33 - 43  CITS : C G & M - Welder - Lesson 33 - 43
   143   144   145   146   147   148   149   150   151   152   153