Page 289 - CITS - Electrician - Trade Practical
P. 289

ELECTRICIAN - CITS


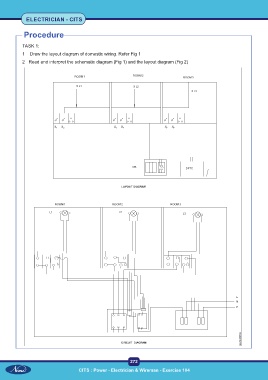
            Procedure


           TASK 1:
           1   Draw the layout diagram of domestic wiring. Refer Fig 1
           2  Read and interpret the schematic diagram (Fig 1) and the layout diagram (Fig 2)

















































































                                                           272

                                    CITS : Power - Electrician & Wireman - Exercise 104
   284   285   286   287   288   289   290   291   292   293   294