Page 151 - CITS - Welder - TP - Hindi
P. 151

वे र - CITS





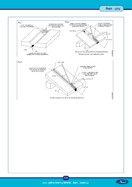
                 Fig 1                                      Fig 2




















                 Fig 3































































                                                           133

                                       CITS : पूंजीगत सामान & िविनमा ण - वे र - अ ास 32
   146   147   148   149   150   151   152   153   154   155   156